< voltar
info
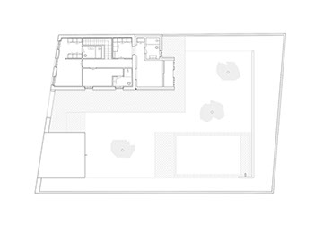
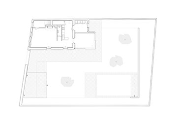
CONDE
Localização
Vila Nova de Gaia
Autoria
António Cruz Lopes