< back
info
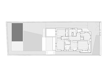
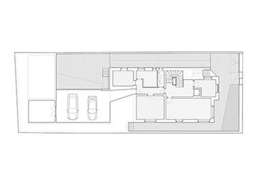
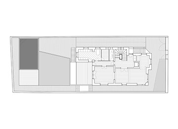
COMBATENTES
Location
Porto
Author
António Cruz Lopes